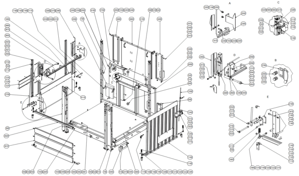
Ersatzteilliste 1004033 A_50881 KRANÖSE GEDA 500Z/ZP
1004033 A_50881 KRANÖSE GEDA 500Z/ZP
Ersatzteillisten: ET353DEGB201707 | ET353DEGB201710 | ET353DEGB201907 | ET353DEGB202010 | ET353DEGBES202010 | ET389DEGB2017-01 | ET389DEGB2017-07 | ET389DEGB201807 | ET389DEGB201906 | ET389DEGB202106 | GEDA | GEDA 300 Z/ZP | GEDA 500 Z/ZP | Geräteversion 0 | Geräteversion 2 | Transportbühnen
Baugruppen: Beförderung / Körbe, Behälter, Gitter, Greifer, Träger
Unterstützung bei Ihrer Bestellung
Wenn Sie ein benötigtes Ersatzteil nicht finden oder es nicht vorrätig ist, kontaktieren Sie uns telefonisch unter +49 89 1499080 oder per E-Mail an info@fischbacher.de. Gerne erkundigen wir uns direkt beim Hersteller nach der Verfügbarkeit.
| Foto | Pos. | Art-Nr. | Name | Preis | Kaufen |
|---|---|---|---|---|---|
![]() | 61013 | GEDA 61013 | GEDA Schäkel 2000Kg 1 / 2" - 61013 | 17,60 € exkl. MwSt. | |
| 1010181 | - | 1010181 | auf Anfrage |



